Standard Outlet Height From Floor - What is the minimum height above the floor for a 220/240 volt receptacle box, according to the nec ?

Standard Outlet Height From Floor - What is the minimum height above the floor for a 220/240 volt receptacle box, according to the nec ?. This electrical wiring question came from bernie, in jacksonville, florida. Jwicklander (jeffrey wicklander) october 20, 2008, 4:53pm #4. This is an easy reach for inserting plugs and out of the way of any floor cleaning liquids. Hochwertige outdoor bekleidung und rucksäcke für dein outdoor abenteuer! Even though there isn't a minimum height requirement, electricians do adhere to a standard when installing electrical receptacles.

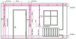
Werkzeug und baumaterial für profis und heimwerker. What is the minimum height above the floor for a 220/240 volt receptacle box, according to the nec ? This spacing is chosen so that a lamp, computer, television, or other appliance will never be more than 6 feet away from an electrical outlet. When installing an electrical outlet outdoors, the box must be at least 6 1/2 inches above grade, and in garages, they should be 18 inches or more above the floor, as measured from the center of each box. The ideal light switch height is 48 inches from the floor.

Https Www Buildingincalifornia Com Wp Content Uploads 2014 01 Resreceptaclereq Pdf
Https Www Buildingincalifornia Com Wp Content Uploads 2014 01 Resreceptaclereq Pdf from
There is no minimum height required. The minimum allowable height, according to the fair housing act, is 15 inches from the floor. Tv wall mounting height chart television screens viewing distance range mounting height 26 flat screen tv 3'3 to 6'5 middle 4'10 49 to center 30 3'8 to 7'6 middle 5' 11 53 to center 34 4'3 to 8'5 middle 6'4 54 to center However, some homeowners choose to adjust this height when the switch needs to go under an upper kitchen cabinet. The ideal light switch height is 48 inches from the floor. What is the minimum height above the floor for a 220/240 volt receptacle box, according to the nec ? 220volt receptacle code ad#block electrical question: Is there a specific height that electrical outlets have to be from the floor of garages/carports?

Since the standard height for most countertops is 36 inches, that places the bottom of the switch plate 40 inches from the floor.

This is an easy reach for inserting plugs and out of the way of any floor cleaning liquids. Where to put outlets in a garage? Tv wall mounting height chart television screens viewing distance range mounting height 26 flat screen tv 3'3 to 6'5 middle 4'10 49 to center 30 3'8 to 7'6 middle 5' 11 53 to center 34 4'3 to 8'5 middle 6'4 54 to center This electrical wiring question came from bernie, in jacksonville, florida. The minimum allowable height, according to the fair housing act, is 15 inches from the floor. 220volt receptacle code ad#block electrical question: How high should a 220volt receptacle box be above the floor? Around here 48 is no longer the standard as 43 seems to be the accepted practice. A common height for a wall outlet is between 12 to 18 inches aff (above finish floor). This spacing is chosen so that a lamp, computer, television, or other appliance will never be more than 6 feet away from an electrical outlet. The americans with disabilities act, on the other hand, specifies 15. Even though there isn't a minimum height requirement, electricians do adhere to a standard when installing electrical receptacles. In rare instances, outlets are still installed in baseboards and in the floor with proper box/covers.

This is an easy reach for inserting plugs and out of the way of any floor cleaning liquids. Hochwertige outdoor bekleidung und rucksäcke für dein outdoor abenteuer! This standard height is 16 to 18 inches from the center of the outlet to the floor. The average height for outlets is 12 inches from the floor to the center of the outlet box. The minimum allowable height, according to the fair housing act, is 15 inches from the floor.

Electrical Outlet Height Clearances Spacing How Much Space Is Allowed Between Electrical Receptacles What Height Or Clearances Are Required
Electrical Outlet Height Clearances Spacing How Much Space Is Allowed Between Electrical Receptacles What Height Or Clearances Are Required from inspectapedia.com
Standard height for outlet boxes the standard height for wall outlet boxes is about 12 inches from the top of the floor covering to the bottom of the receptacle box (or 16 inches to the top of the box). 48 is the highest allowed by the ada and for receptacles it's 15 minimum aff. Imo, 48 for switches is too high and a bit of an eyesore. When installing an electrical outlet outdoors, the box must be at least 6 1/2 inches above grade, and in garages, they should be 18 inches or more above the floor, as measured from the center of each box. From the kitchen floor, the correct height of electric outlets should be about 43 inches. What is the minimum height above the floor for a 220/240 volt receptacle box, according to the nec ? For convenience outlets, such as those fitted in the kitchen, you will find that these are around 42 inches in height, or over the surface of your work tops. I do switches and receptacles at 43 off the sub floor to the bottom of the box.

I wish to install an internal soil stack through three flats, one on top of the other, and will 't' off at each bathroom for the toilets.

Standard height for outlet boxes the standard height for wall outlet boxes is about 12 inches from the top of the floor covering to the bottom of the receptacle box (or 16 inches to the top of the box). In rare instances, outlets are still installed in baseboards and in the floor with proper box/covers. Receptacles shall be installed such that no point measured horizontally along the floor line of any wall space is more than 6ft from a receptacle outlet. Electrical outlets are most commonly installed at a height of 16 inches from the floor to the top of the outlet, but you'll encounter some gfci outlets installed above the bathroom countertop. Even though there isn't a minimum height requirement, electricians do adhere to a standard when installing electrical receptacles. The rationale is that the receptacle/plug connection can be an ignition source and there are other code sections (related to water heaters) that require the ignition. Regarding switch height, some townships around me have adopted ada guidelines and require 48 to center which i find awkward. Wall outlets do not have a specific height according to electrical codes but a practical height is 18 inches off the floor. Builders generally use this standard since this height can be reached as comfortably from the standing position as from the sitting position. Wall outlets are typically placed at a height of 12 to 16″. Imo, 48 for switches is too high and a bit of an eyesore. Electrical receptacle outlets on branch circuits of 30 amperes or less and communication system receptacles shall be located no more than 48 inches (1219 mm) measured from the top of the receptacle outlet box nor less than 15 inches (381 mm) measured from the bottom of the receptacle outlet box to the level of the finished floor or working platform.if the reach is over a physical barrier or an. There is no minimum height required.

Receptacles shall be installed such that no point measured horizontally along the floor line of any wall space is more than 6ft from a receptacle outlet. Builders generally use this standard since this height can be reached as comfortably from the standing position as from the sitting position. Hochwertige outdoor bekleidung und rucksäcke für dein outdoor abenteuer! Regarding switch height, some townships around me have adopted ada guidelines and require 48 to center which i find awkward. I wish to install an internal soil stack through three flats, one on top of the other, and will 't' off at each bathroom for the toilets.

Electrical Code Requirements For Outlets In The Home
Electrical Code Requirements For Outlets In The Home from www.thespruce.com
The minimum allowable height, according to the fair housing act, is 15 inches from the floor. You can have standard floor level outlets in a bathroom so long as they are in addition to the required vanity outlet. I can't find much online on the norm except a few things that do say 48 is normal. However, some homeowners choose to adjust this height when the switch needs to go under an upper kitchen cabinet. The average height for outlets is 12 inches from the floor to the center of the outlet box. Remodeling and upgrading home electrical wiring when upgrading home electrical wiring or remodeling the actual height can be adjusted so the elevations of the switches and outlets will match other existing outlets and switches. Wall outlets are typically placed at a height of 12 to 16″. Electrical outlets are most commonly installed at a height of 16 inches from the floor to the top of the outlet, but you'll encounter some gfci outlets installed above the bathroom countertop.

Is there a specific height that electrical outlets have to be from the floor of garages/carports?

Wall outlets are typically placed at a height of 12 to 16″. It has to be moved, though, and electrician is wanting to move it down to 48 off the floor. However, some homeowners choose to adjust this height when the switch needs to go under an upper kitchen cabinet. Where to put outlets in a garage? The minimum allowable height, according to the fair housing act, is 15 inches from the floor. Remodeling and upgrading home electrical wiring when upgrading home electrical wiring or remodeling the actual height can be adjusted so the elevations of the switches and outlets will match other existing outlets and switches. Is there a specific height that electrical outlets have to be from the floor of garages/carports? In rare instances, outlets are still installed in baseboards and in the floor with proper box/covers. I do switches and receptacles at 43 off the sub floor to the bottom of the box. A common height for a wall outlet is between 12 to 16 inches to the bottom of the device. A common height for a wall outlet is between 12 to 18 inches aff (above finish floor). From the kitchen floor, the correct height of electric outlets should be about 43 inches. The nec has no official requirement concerning the height of a receptacle above any finished floor, including the kitchen floor.

I wish to install an internal soil stack through three flats, one on top of the other, and will 't' off at each bathroom for the toilets outlet height from floor. 48 is the highest allowed by the ada and for receptacles it's 15 minimum aff.

Posting Komentar

Lebih baru Lebih lama